Home
|
Gebäude
|
Standort
|
Referenzen
|
Ansichten
|
Historie
|
Vermietung
|
Service
|
Impressum
Neubauten 15 - 18
Haus 15
Haus 16
Haus 17
Haus 18
Neubauten 12 - 14
Haus 12-14
Neubauten 20-25
Haus 20+21
Haus 24 c
Haus 25 a+b
Bestandsimmobilien
Haus 4
Haus 23
Haus 24 b
Neubau: Haus 18
Ansicht Osten
Ansicht Süden
Ansicht Westen
UNTERGESCHOSS
insgesamt 210 Stellplätze in Tiefgarage, außerdem zahlreiche Außenstellplätze für PKW und Fahrräder
ERDGESCHOSS
Mietfläche nach GIF ca. 881 m², teilbar ab ca. 395 m²
1. OBERGESCHOSS
Mietfläche nach GIF ca. 813 m² teilbar ab ca. 379 m²
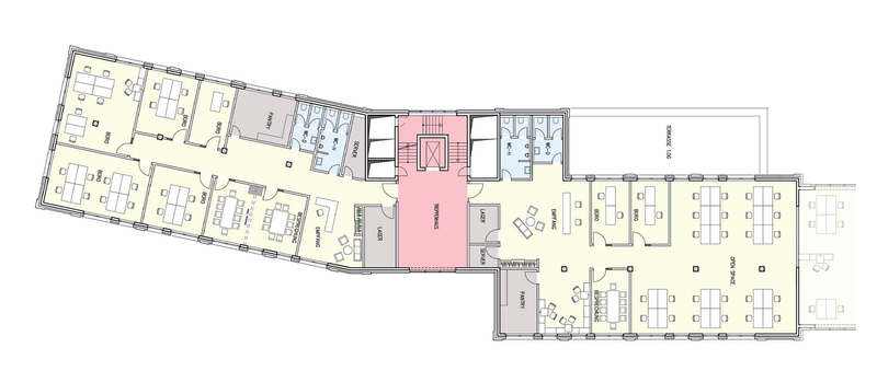
2., 3. + 4. OBERGESCHOSS
Mietfläche nach GIF ca. 771 m², teilbar ab ca. 379 m²
3. OBERGESCHOSS - Beispiel möbliert
Mietfläche nach GIF ca. 771 m², teilbar ab ca. 379 m²
5. OBERGESCHOSS
Mietfläche nach GIF ca. 660 m², teilbar ab ca. 327 m²
Ansicht Ost